不到30㎡的小公寓装修
>首页 -> 社会专题 -> 有书有道 2010-06-29 来源:zhihu 作者: 【】 浏览:910

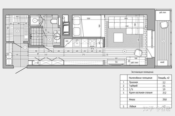
这是位于圣彼得堡的一套29平方米单身公寓,主人是一位年轻女性,该方案由andrew和alain timonina设计。

小户型通常采用开放式设计,本套案例也是。

客厅、厨房、卧室区域,均有序依存,而并没有牺牲开放性的原则。客厅沙发背景简单的灯饰为整个公寓增添几分生动的气息。

卧室的另一侧是厨房,当然也是紧凑设计。

您看到此篇文章时的感受是:
Tags: 责任编辑:佚名
免责申明: 除原创及很少部分因网文图片遗失而补存外,本站不存储任何有版权的内容。你看到的文章和信息及网址索引均由机器采集自互联网,由于时间不同,内容可能完全不同,请勿拿本网内容及网址索引用于交易及作为事实依据,仅限参考,不会自行判断者请勿接受本站信息,本网转载,并不意味着赞同其观点或证实其内容的真实性.如涉及版权等问题,请立即联系管理员,我们会予以更改或删除,保证您的权利.对使用本网站信息和服务所引起的后果,本网站不作任何承诺.
】【打印繁体】【投稿】【收藏】 【推荐】【举报】【评论:0条】 【关闭】 【返回顶部
更多
上一篇欧式简约风公寓,纵享雅致生活 下一篇美式乡村公寓 减压装修再现江湖
密码: (新用户注册)

最新文章

图片主题

热门文章

推荐文章

相关文章

便民服务

手机扫描

空间赞助

快速互动

论坛互动
讨论留言

有事联系

有哪个那个什么的,赶紧点这里给DOVE发消息

统计联系

MAIL:gnlt@Dovechina.com
正在线上:1314

版权与建议

任何你想说的