90ƽÃ×Õâô¼òµ¥¸ã¶¨ÁË£¿(¶þ)
>Ê×Ò³ -> Éç»áרÌâ -> ÓÐÊéÓеÀ 2024-03-09 À´Ô´:ËѺü ×÷Õß: ¡¾´óÖÐС¡¿ ä¯ÀÀ:1592´Î

90ƽÃ×ÌôÕ½Èý·¿£ºÒ»¸ö»§Ð͵Ä18ÖÖÓÅ»¯·½°¸£¡  À´×ÔÖªºõ£º@ÀÇÊå

Ãæ¶ÔÕâ¸öÄÑÌ⣬Éè¼ÆÊ¦ÃÇÊÇÈçºÎÓþ¡Ã¿1©OµÄÄØ£¿

ÈÃÎÒÃÇÒ»ÆðÀ´¿´¿´°É£¡

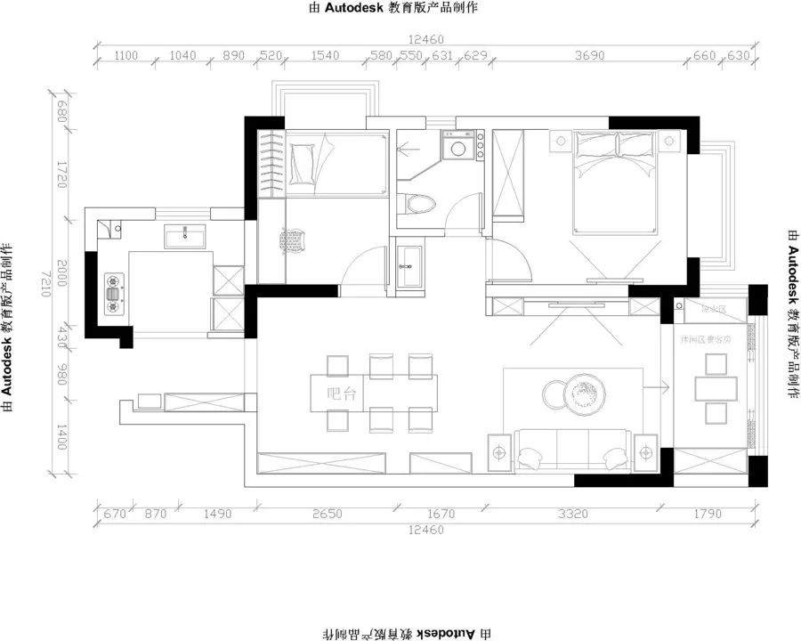
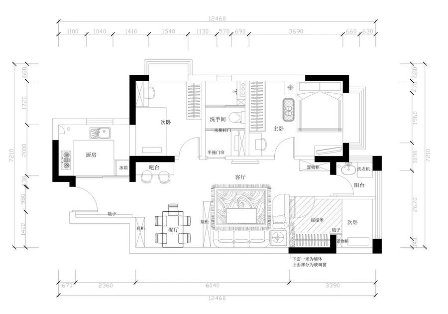
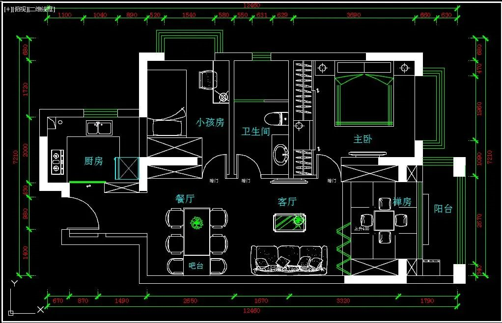
ԭʼ»§ÐÍͼÈçÏÂ

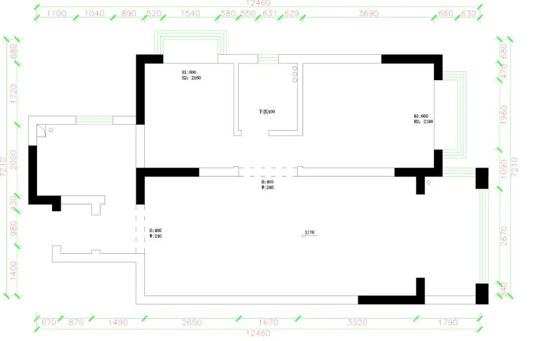
¸ÄÔìµÄ»§ÐÍÒªÇó

¡¾»§ÐÍÃæ»ý¡¿90ƽÃ×

¡¾»§ÐÍÀàÐÍ¡¿Éè¼Æ·ç¸ñ²»¶¨£¬Ö÷Ìâ¿É×Ô¶¨£¨ÍâΧÓë³ÐÖØÇ½²»¿É²ð£¬Î´Ìî³äǽÌ岿·Ö¿É²ð£©

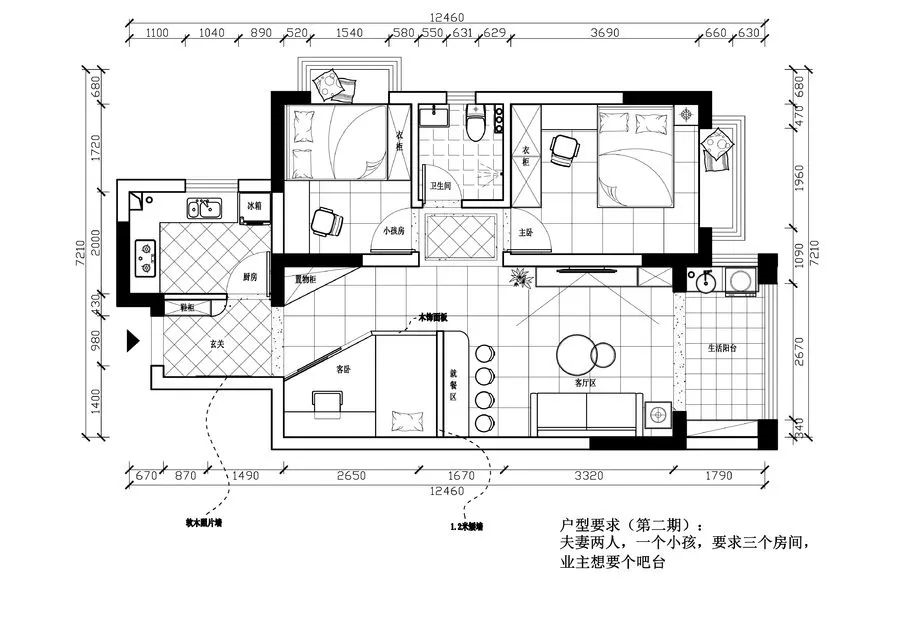
¡¾ÒµÖ÷ÐÅÏ¢¡¿ÒµÖ÷ÊÇÒ»¶ÔÄêÇá·ò¸¾£¬ÓÐÒ»¸öСº¢×Ó£¬ÒªÇóÈý¸ö·¿¼äºÍÒ»¸ö°Ę́

Ͷ¸å×÷Æ·µÄչʾ

ÒÔÏÂÅÅÐò½ö×öÐòºÅ±ê¼Ç£¬ÅÅÃû²»·ÖÏȺó˳ÐòŶ~

01

@16487960 Ͷ¸å×÷Æ·

02

@ÍÀÉñ Ͷ¸å×÷Æ·

03

@ÁÙÒ»_b37e9f94 Ͷ¸å×÷Æ·

04

@ÍýÈ»_ Ͷ¸å×÷Æ·

05

@һöÏÉÈËÕÆ Ͷ¸å×÷Æ·

06

@yuelun377 Ͷ¸å×÷Æ·

07

@568794225 Ͷ¸å×÷Æ·

08

@¡¾QQͶ¸å¡¿3701***** Ͷ¸å×÷Æ·

09

@¡¾QQͶ¸å¡¿4657***** Ͷ¸å×÷Æ·

10

@¡¾QQͶ¸å¡¿9050***** Ͷ¸å×÷Æ·

11

@¡¾QQͶ¸å¡¿1137****** Ͷ¸å×÷Æ·

12

@Flyyyy Ͷ¸å×÷Æ·

13

@yijia Ͷ¸å×÷Æ·

14

@ʧÒäµÄ½ðÓãbb Ͷ¸å×÷Æ·

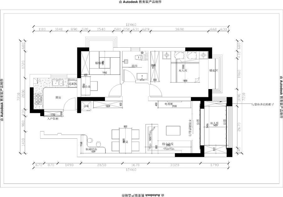
Éè¼ÆËµÃ÷£º

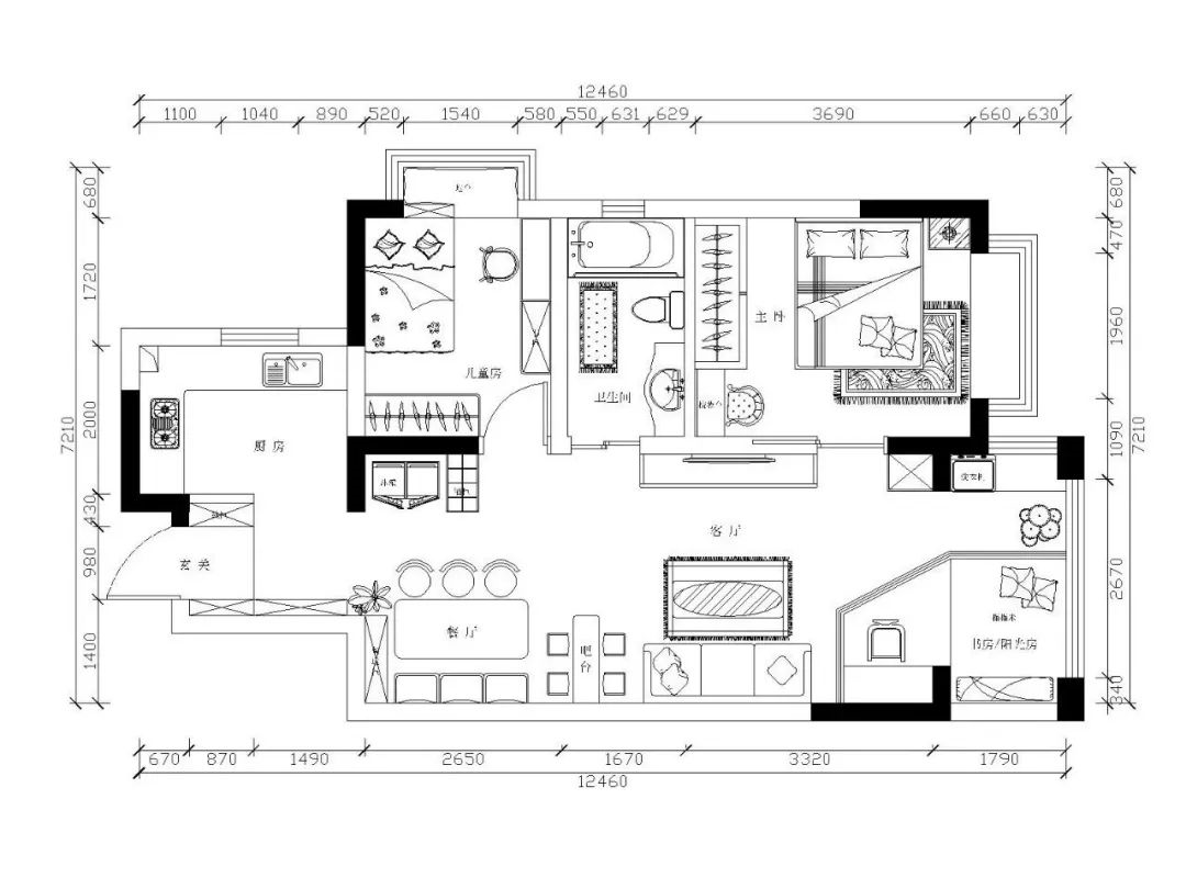
1¡¢½«Ô­±¾¿ÍÌü»®·ÖΪ²ÍÌü£¬¿ÍÌü£¬ÎÔÊÒ...

2¡¢´ÎÎÔ2µÄÇøÓò²ÉÓÃÎí»¯²£Á§½«¿ÍÌü¸úÎÔÊÒ»®·Ö¿ªÀ´£¬ÔÚÎí»¯²£Á§µÄ×÷ÓÃÏ£¬¼ÈÂú×ã¿ÍÌüµÄ²É¹âͬʱҲ±£Ö¤ÎÔÊÒµÄ˽ÃÜÐÔ...

15

@ºúÂܲ·85 Ͷ¸å×÷Æ·

16

@TaoTaoؼ Ͷ¸å×÷Æ·

17

@ÀîêÀ³Ò Ͷ¸å×÷Æ·

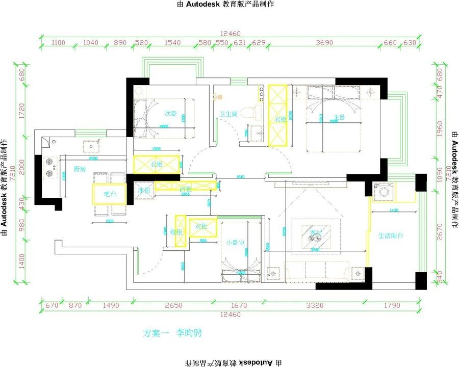
Éè¼ÆËµÃ÷£º

1¡¢Ð¡ÎÔÊҵĸñ¾Ö½ô´Õ£¬¿ÉÒÔ·ÅÒ»ÕŸߵʹ²£¬Ò»·½ÃæÔö¼Ó´¢Îï¿Õ¼ä£¬Ò»·½ÃæÌṩ¿ÍÈËסËÞ¡£

2¡¢°Ę́×÷Ϊ²Í×ÀʹÓ㬼ȽÚÔ¼Á˳ø·¿µÄ¿Õ¼ä£¬ÓÖÔö¼ÓÁËÐÝÏ¢ÓéÀֵĿռä

3¡¢ÎÔÊÒÒ¹ñÂú×ãÈÕ³£ÐèÇó£¬Éú»îÑǫ̂һӦ¾ãÈ«¡£

18

@Pampan Ͷ¸å×÷Æ·

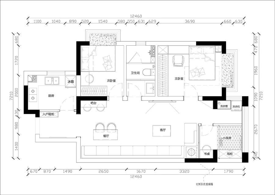
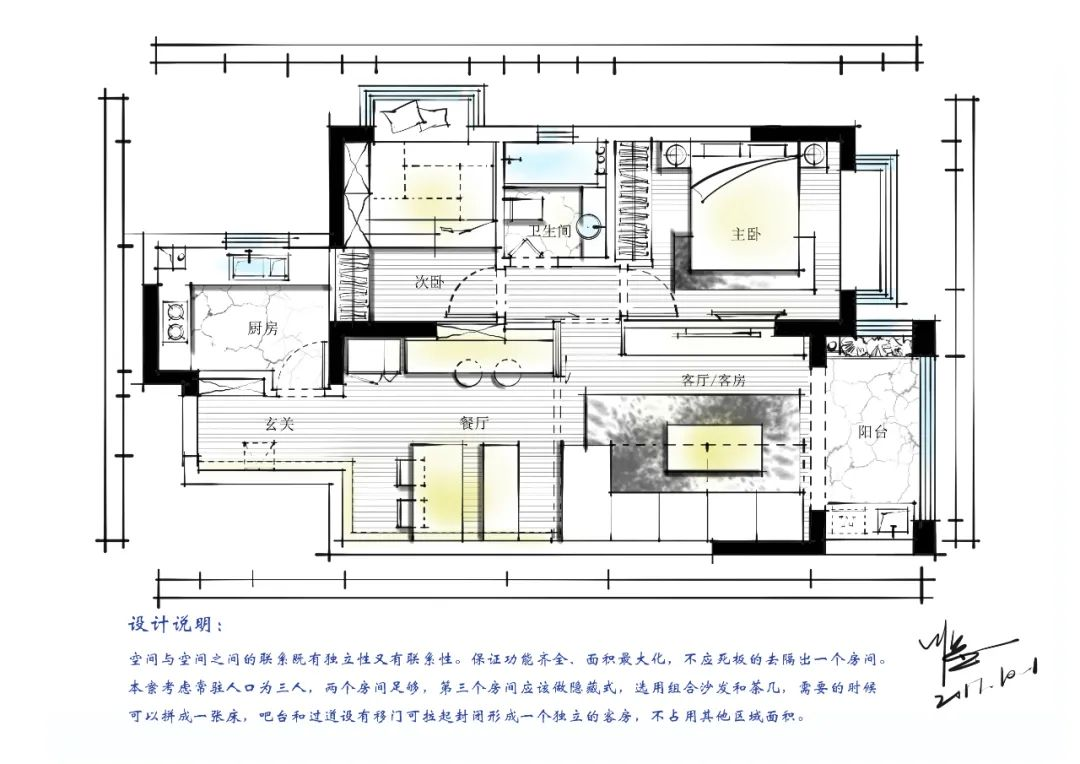
Éè¼ÆËµÃ÷£º

1.ÔÚÑǫ̂´¦»®·Ö³öµÚÈý¼äÎÔÊÒ£¬ÎÔÊÒÀï¿¿½ü¿ÍÌüµÄÄÇÒ»ÃæÇ½×ö³ÉÉÏÃæ²£Á§ÏÂÃæÇ½µÄÐÎʽ£¬¿ÍÌü¿ÉÒÔÒԴ˽è¹â¡£

2.Ï´ÊÖ¼ä¸Éʪ·ÖÀ룬·½±ã¶àÈËͬʱʹÓã¬ÔÚÎÀÉú¼äÏ´ÊǪ̈Óë¿ÍÌüÖ®¼äÓÃÃÅÁ±¸ô¿ª¡£

Äú¿´µ½´ËƪÎÄÕÂʱµÄ¸ÐÊÜÊÇ£º
Tags£ºÖª ÔðÈα༭£ºØýÃû
ÃâÔðÉêÃ÷£º ³ýÔ­´´¼°ºÜÉÙ²¿·ÖÒòÍøÎÄͼƬÒÅʧ¶ø²¹´æÍ⣬±¾Õ¾²»´æ´¢ÈκÎÓаæÈ¨µÄÄÚÈÝ¡£Äã¿´µ½µÄÎÄÕºÍÐÅÏ¢¼°ÍøÖ·Ë÷Òý¾ùÓÉ»úÆ÷²É¼¯×Ô»¥ÁªÍø£¬ÓÉÓÚʱ¼ä²»Í¬£¬ÄÚÈÝ¿ÉÄÜÍêÈ«²»Í¬£¬ÇëÎðÄñ¾ÍøÄÚÈݼ°ÍøÖ·Ë÷ÒýÓÃÓÚ½»Ò×¼°×÷ΪÊÂʵÒÀ¾Ý£¬½öÏ޲ο¼£¬²»»á×ÔÐÐÅжÏÕßÇëÎð½ÓÊܱ¾Õ¾ÐÅÏ¢£¬±¾Íø×ªÔØ,²¢²»Òâζ×ÅÔÞͬÆä¹Ûµã»ò֤ʵÆäÄÚÈݵÄÕæÊµÐÔ.ÈçÉæ¼°°æÈ¨µÈÎÊÌâ,ÇëÁ¢¼´ÁªÏµ¹ÜÀíÔ±,ÎÒÃÇ»áÓèÒÔ¸ü¸Ä»òɾ³ý£¬±£Ö¤ÄúµÄȨÀû.¶ÔʹÓñ¾ÍøÕ¾ÐÅÏ¢ºÍ·þÎñËùÒýÆðµÄºó¹û,±¾ÍøÕ¾²»×÷ÈκγÐŵ.
Ê×Ò³ ÉÏÒ»Ò³ 1 2 3 ÏÂÒ»Ò³ βҳ 2/3/3
¡¾´ó ÖРС¡¿¡¾´òÓ¡¡¿ ¡¾·±Ìå¡¿¡¾Í¶¸å¡¿¡¾Êղء¿ ¡¾ÍƼö¡¿¡¾¾Ù±¨¡¿¡¾ÆÀÂÛ:0Ìõ¡¿ ¡¾¹Ø±Õ¡¿ ¡¾·µ»Ø¶¥²¿¡¿
΢ÐÅ·ÖÏí¶þάÂë

´ò¿ªÎ¢ÐÅɨһɨ·ÖÏí

ÉÏһƪ£º³÷¹ñ¿ÆÑ§²¼ÖÃϸÔò´ó¹«¿ª£¡ ÏÂһƪ£ºÓùñ×Ó¡¢²£Á§µÈ¸ô¶Ï·¨Éè¼Æ
ÃÜÂë: (ÐÂÓû§×¢²á)

×îÐÂÎÄÕÂ

ͼƬÖ÷Ìâ

ÈÈÃÅÎÄÕÂ

ÍÆ¼öÎÄÕÂ

Ïà¹ØÎÄÕÂ

±ãÃñ·þÎñ

ÊÖ»úɨÃè

¿Õ¼äÔÞÖú

¿ìËÙ»¥¶¯

ÂÛ̳»¥¶¯
ÌÖÂÛÁôÑÔ

ÓÐÊÂÁªÏµ

ÓÐÄĸöÄǸöʲôµÄ,¸Ï½ôµãÕâÀï¸øDOVE·¢ÏûÏ¢

ͳ¼ÆÁªÏµ

MAIL£ºgnlt@Dovechina.com
ÕýÔÚÏßÉÏ£º1

°æÈ¨Ó뽨Òé

ÈκÎÄãÏë˵µÄ